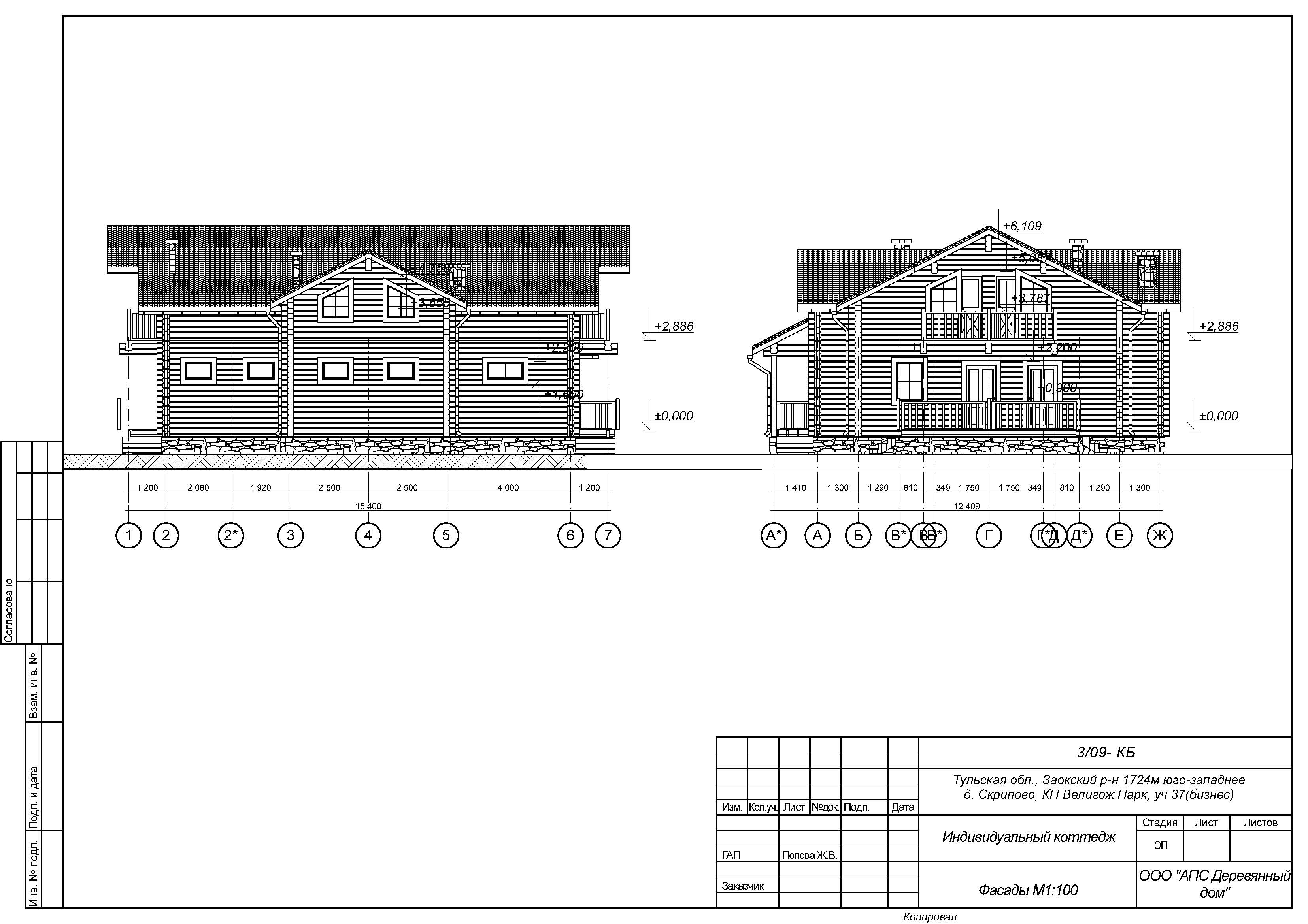
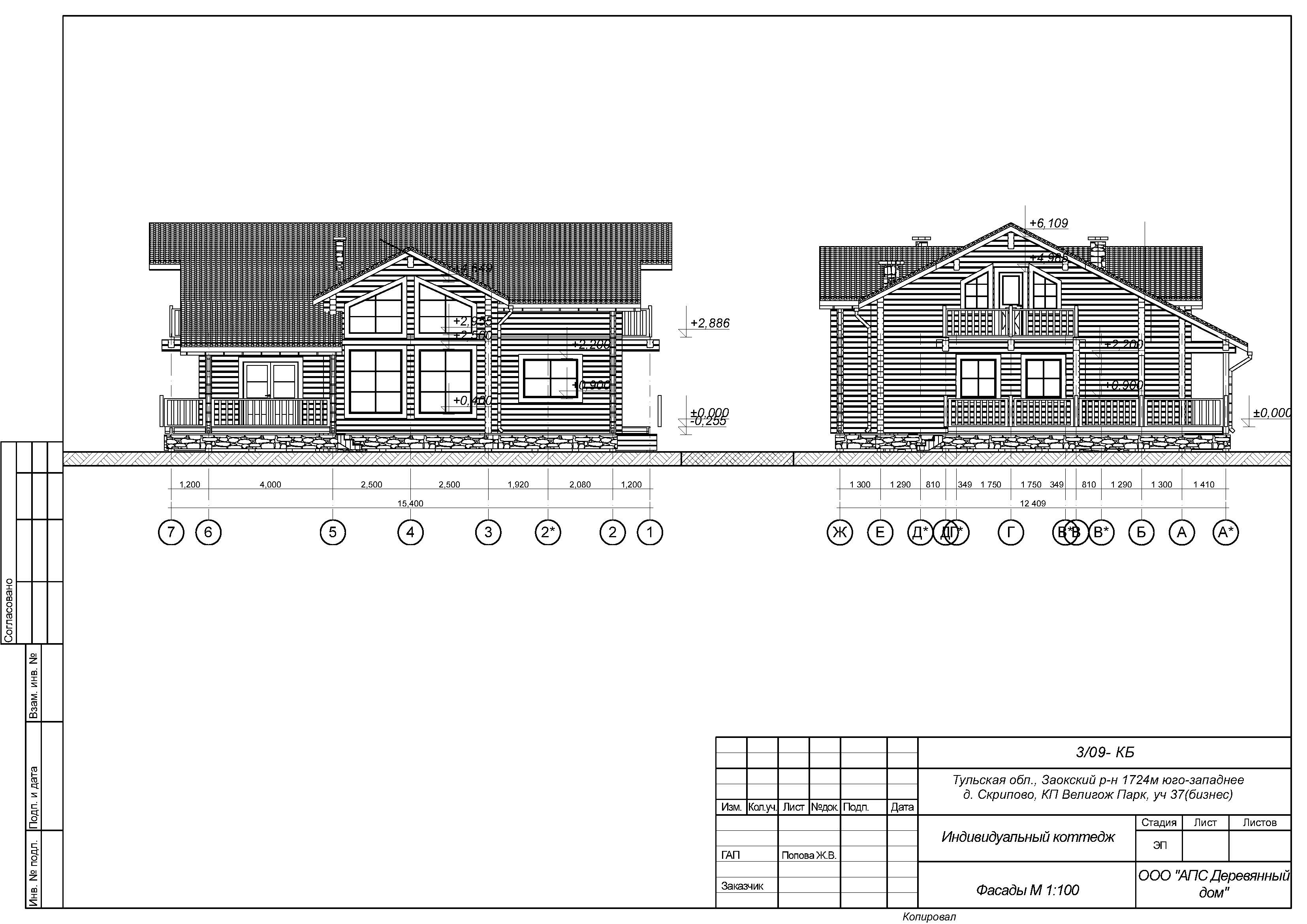
По сути, рабочий проект любого здания представляет собой пакет документов с детальными чертежами дома. В рабочем проекте прорисовываются планы дома, кровля, фасады, разрезы, планы балок перекрытия, спецификации окон и дверей, а также инженерные коммуникации и прочие элементы будущего строения. На основе данного проекта осуществляется окончательный расчёт необходимого количества материалов, и только после его подписания чертежи передаются в производство, после чего и начинается непосредственно строительство.
Над созданием рабочих проектов обычно работает несколько специалистов, которые детально прорабатывают каждый элемент дома, каждую его конструкцию, каждый узел коммуникаций, вплоть до примерного расположения электрических розеток, выключателей, светильников и расстановки мебели.
При помощи рабочих чертежей архитекторы, заказчики и строители могут видеть, каким образом отдельные детали конструкции, соединяясь, образуют законченное строение.
Структура рабочего проекта











Рабочее проектирование деревянного дома можно разделить на несколько частей:
● архитектурно-строительная часть
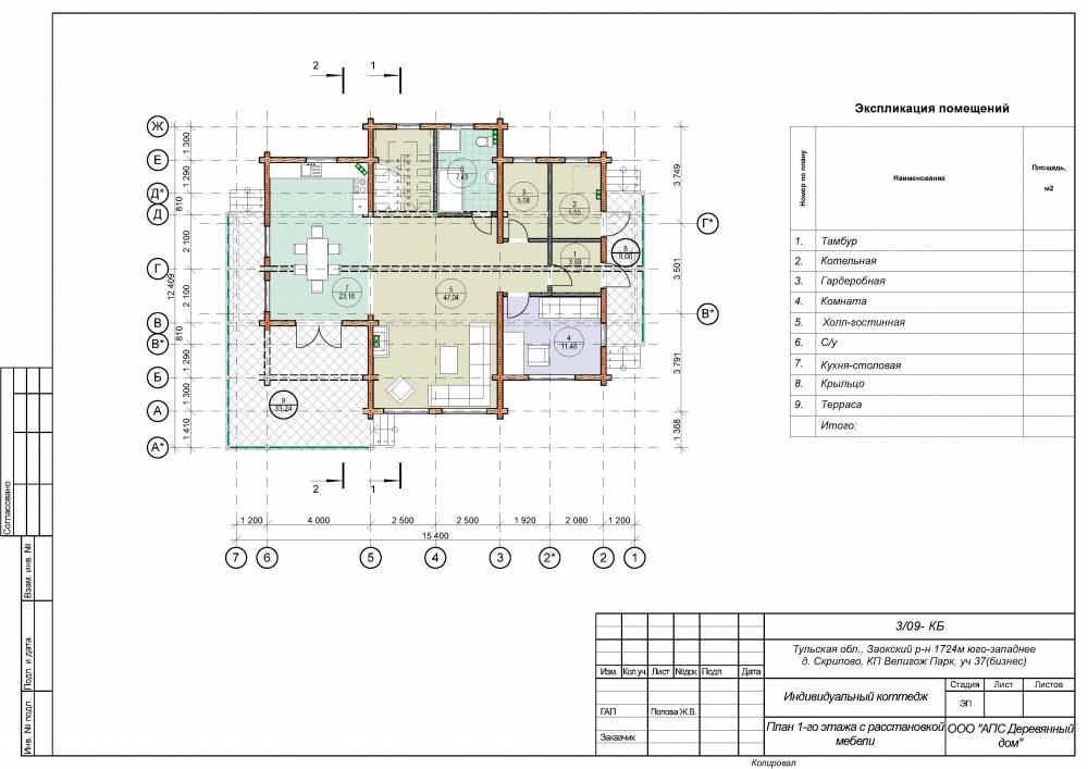
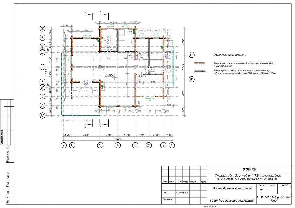
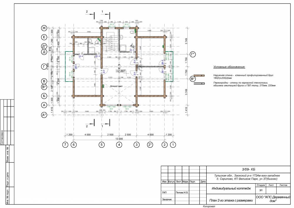
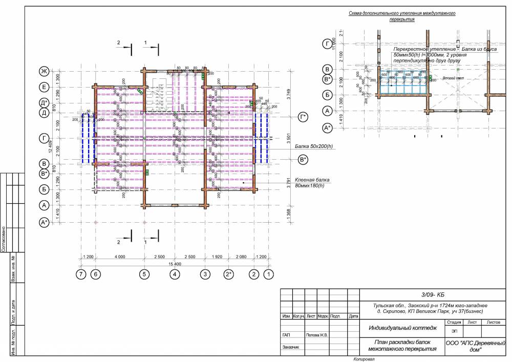
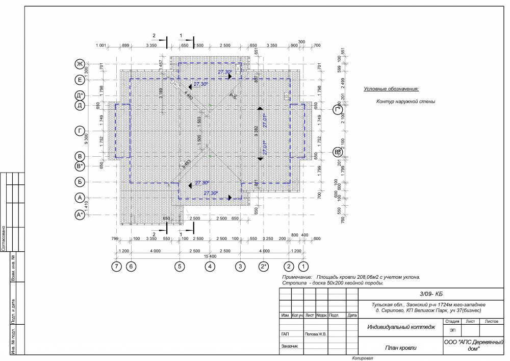
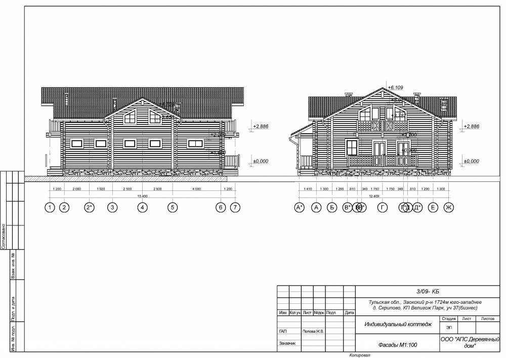
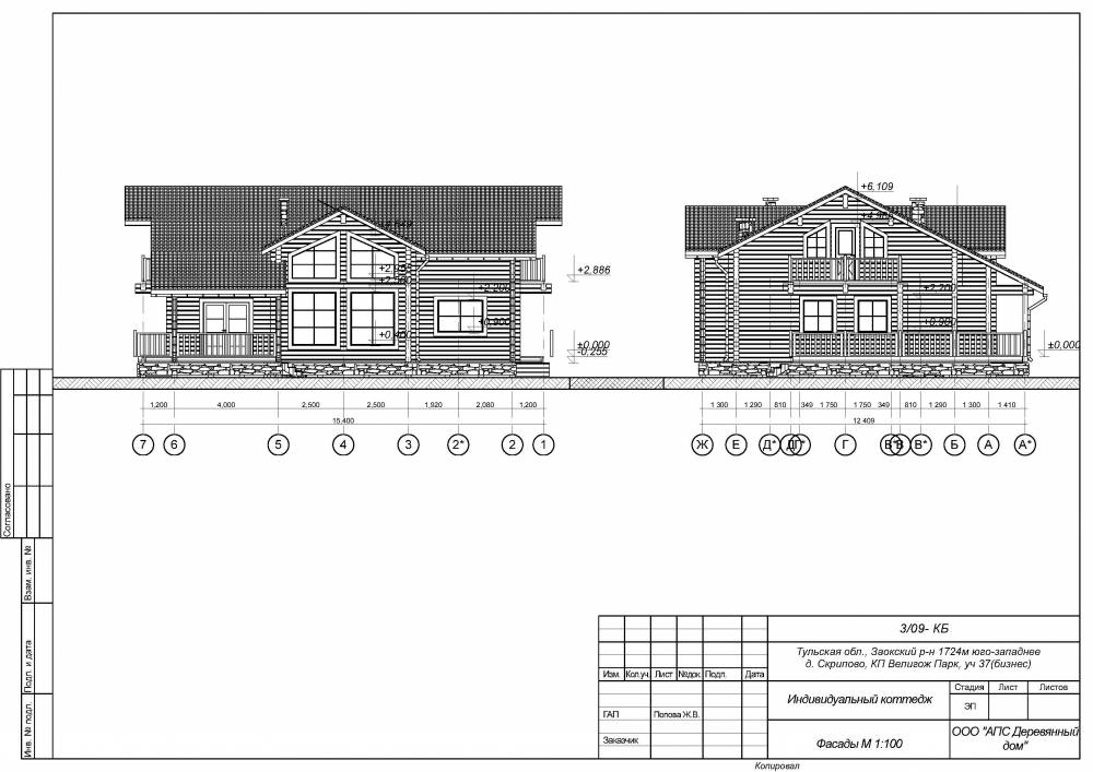
Чертежи планов с расстановкой мебели и размеров, фасады, разрезы, постановка дома на фундамент, кровля, спецификации окон и дверей;
● конструкторская часть
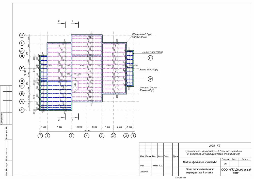
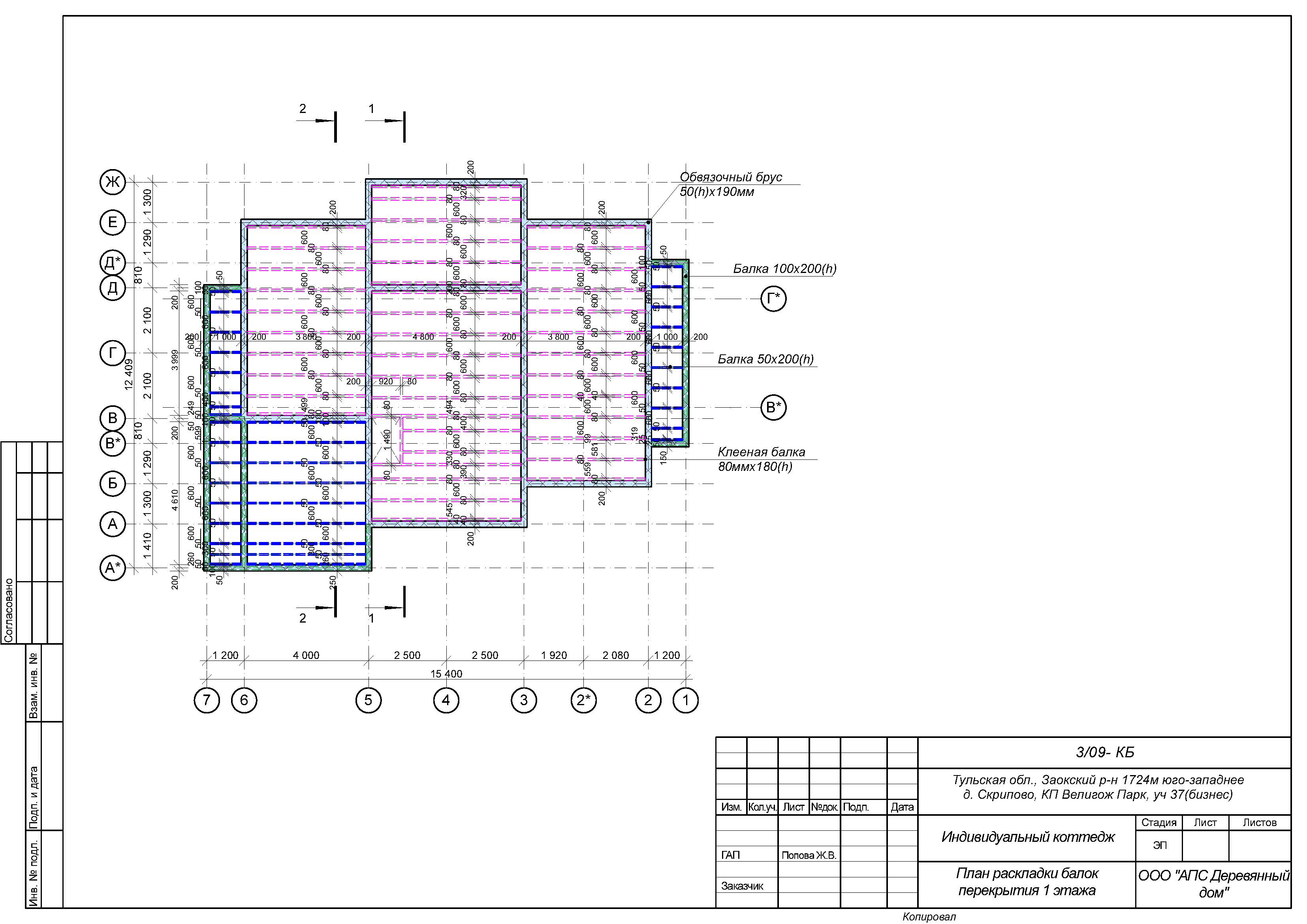
Раскладка брусовых стен по конструкционным осям, чертежи всех стеновых элементов с указанием необходимых отверстий и типов соединений;
● инженерная часть
Разработка плана прохождения коммуникаций – водопровода, канализации, отопления, вентиляции, электрической и телефонной сети.
Важность рабочего проектирования, как одного из этапов строительства
Рабочий проект является очень важным документом для строителей. Ошибки, допущенные в процессе рабочего проектирования деревянного дома, могут проявиться во время его последующей эксплуатации. Поэтому главной задачей архитекторов является тщательная проработка всех составляющих проекта, соблюдение строительных норм и правил, а также своевременное согласование деталей с заказчиком.
Что получилось на практике:

Смотрите также: