Подпишись на телеграм-канал и будь в курсе последних новостей
+
Москва
Ваш регион
Санкт-Петербург

Эскизное проектирование домов

Первым и основным этапом разработки проекта деревянного дома является эскизное проектирование. Эскизный проект можно сравнить с фундаментом дома - от его качества, продуманности будет зависеть конечный результат.
 
Именно эскизный проект поможет увидеть вам, каким будет ваш коттедж снаружи и изнутри: вы сможете оценить его архитектурный стиль, элементы декора, планировку помещений и так далее. Так как в самом начале "пути" ещё не ясно, как будет выглядеть дом, подумайте, над тем, что хотите в нём видеть: Где будет вход? С крыльцом или без? Сколько будет санузлов? А лоджий? Будет ли у вас гараж? На сколько машин? Необходимо заранее обсудить все детали с архитектором, чтобы потом не терять время на перепроектировании и не откладывать заезд в новый дом на один-два месяца из-за изменений в проекте.
 
Эскизный проект должен разрабатываться не только с учетом желаний заказчика, но с учетом многих факторов, рельефа местности в частности.
 
Наконец, без эскизного проекта вам просто не оформят разрешение на строительство.
 

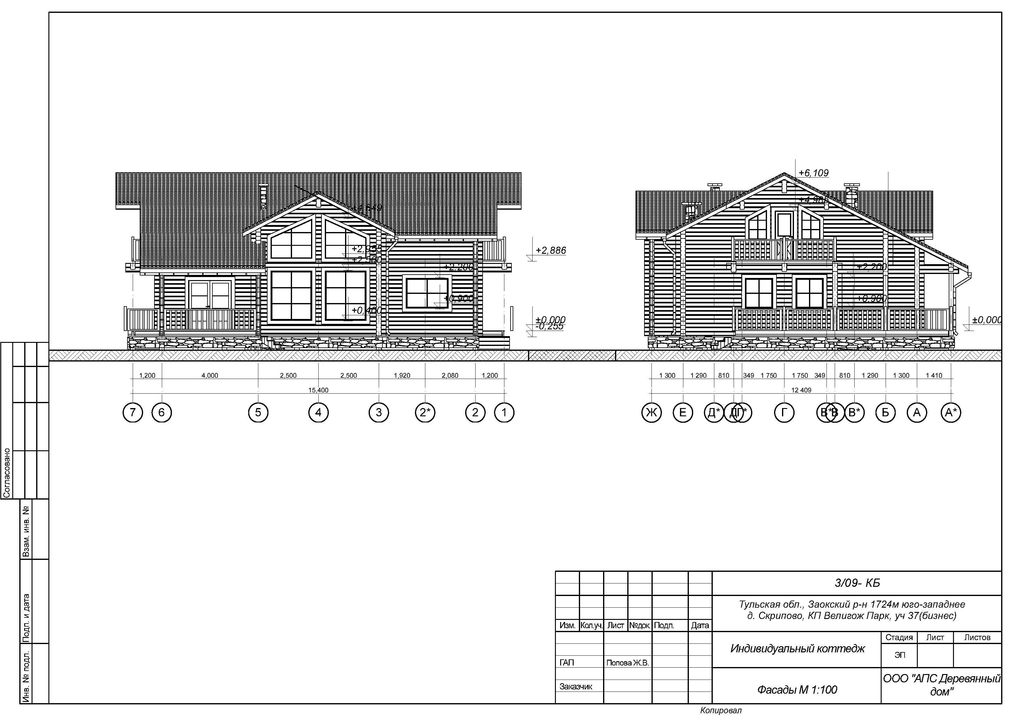
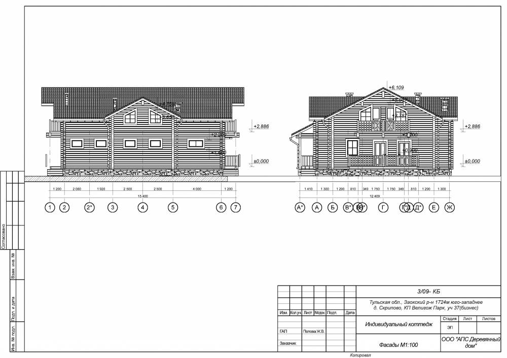
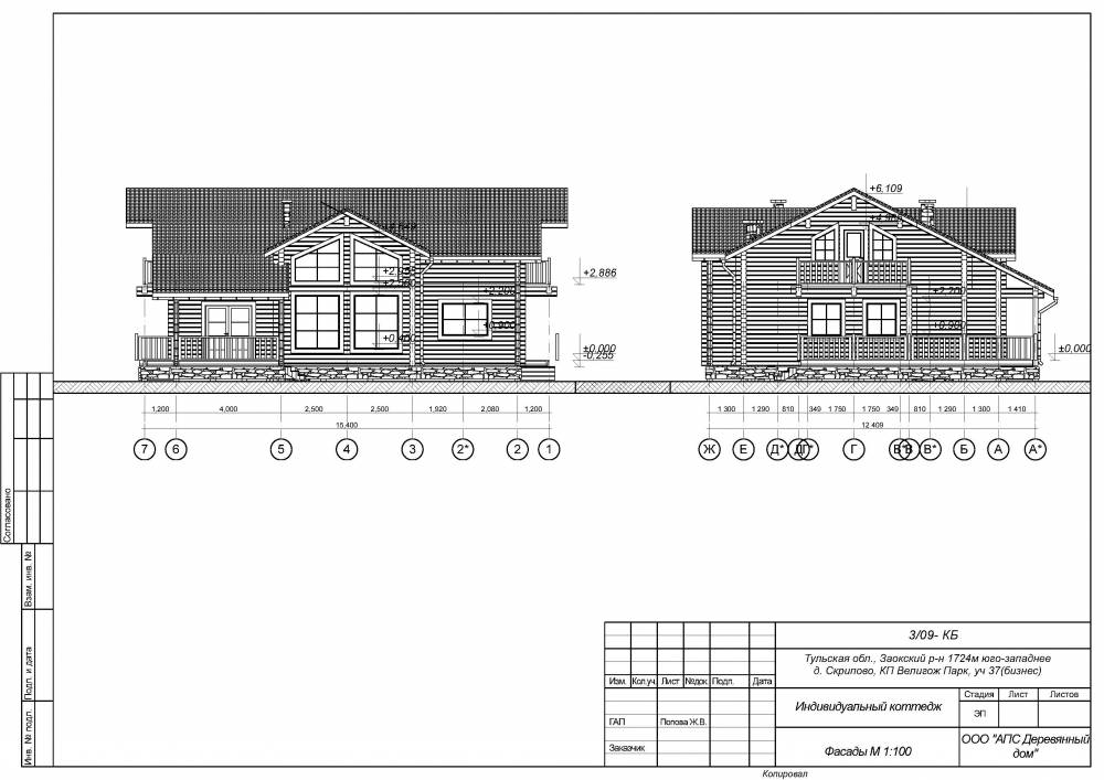
Модели эскизного проекта

 

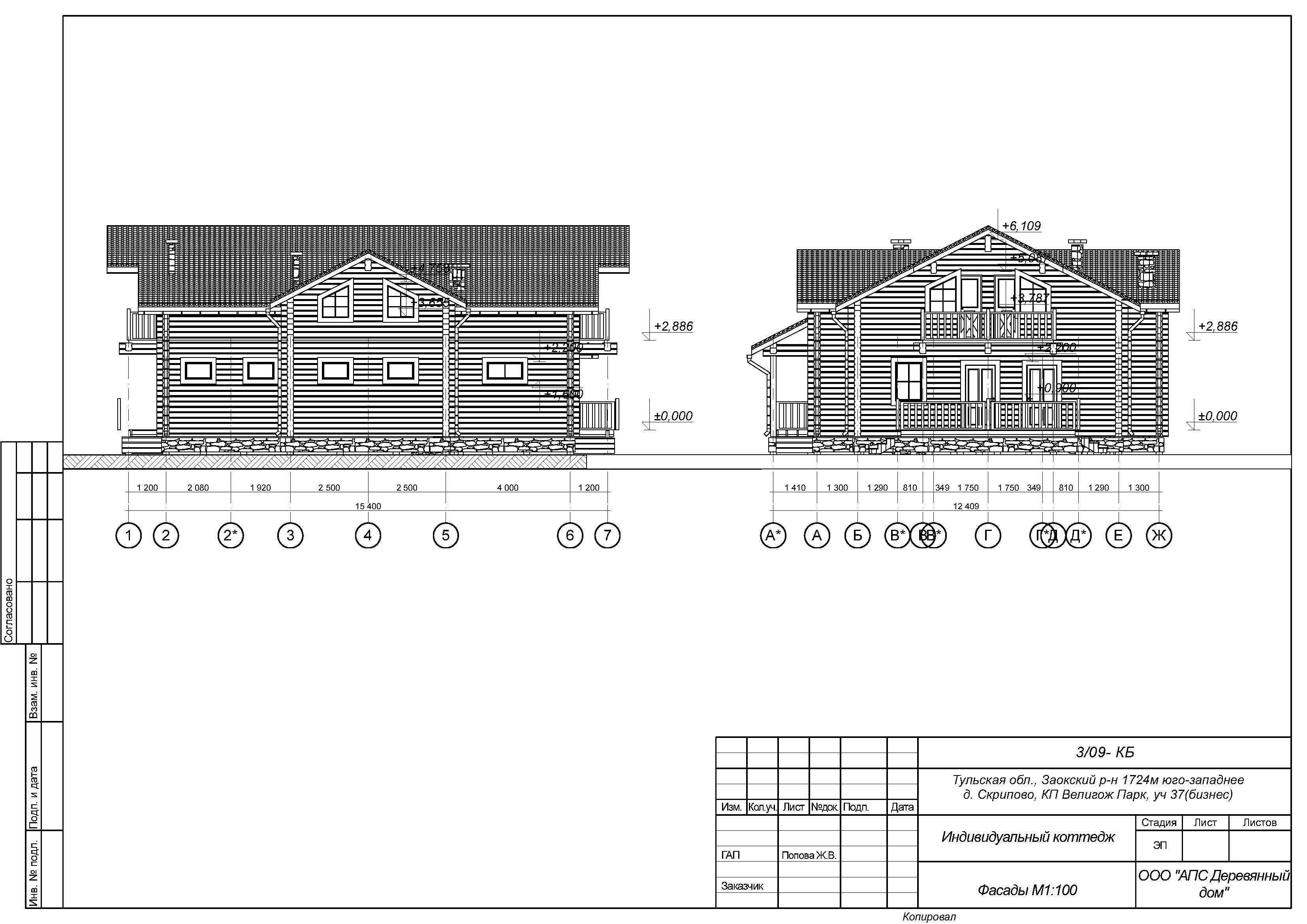
Модели эскизного проекта в разрезе

 

В зависимости от ваших желаний и возможностей вы можете:

● выбрать эскизный проект из уже готовых решений

● заказать доработку готового эскизного проекта с учетом ваших требований

● заказать индивидуальный эскизный проект

 

Разумеется, наиболее оптимальным вариантом является создание индивидуального проекта, тем более, если речь идет про дома из клееного бруса, из материала, с помощью которого можно воплотить в реальность любые задумки. Поставьте на одну чашу весов небольшую (и как часто выходит, неоправданную) экономию, а на вторую - возможность получить дом, который будет на 100% соответствовать вашим желаниям, требованиям. 
 

 

Заказывая эскизное проектирование в нашей компании, вы сможете рассчитывать на:

экономию своего времени.
Мы не просто разрабатываем эскизные проекты с учетом пожеланий клиента, но мы находим решения, которые можно воплотить в реальность быстро и качественно;

экономию своих денег.
Очень часто случается, что даже небольшие изменения в проекте позволяют существенно сократить количество используемого строительного материала. Эскизный проект позволит вам оценить, насколько нужны вам те или иные архитектурные, планировочные решения: в общем, именно благодаря эскизному проекту вы сможете найти компромисс между своими желаниями и возможностями;

точное соответствие результата вашим ожиданиям и потребностям.
Эскизный проект позволит вам на самом раннем этапе оценить, насколько нужны вам те или иные конструкционные, архитектурные, планировочные решения;

привлекательную архитектуру.
Специалисты нашей компании при составлении эскизного проекта не только стремятся получить наиболее высокие эксплуатационные характеристики, но не забывают о внешней привлекательности будущего дома;

практичность.
При разработке проекта специалисты компании учтут все особенности вашего образа жизни, сделав так, что будущий дом будет наиболее приспособлен под вас.

Мы создадим для вас не просто качественный эскизный проект дома из клееного бруса, но проект дома вашей мечты. Обращайтесь!

Читайте далее:

- Следующий этап проектирования: Рабочий проект