
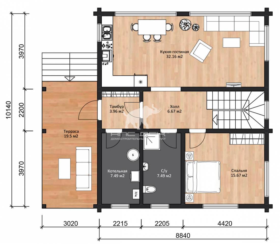
- Инженерно-геологические изыскания
- Конструкторский расчет по результатам изысканий по СП, Санпин
- Вынос осей участка и пятна застройки, кадастровый инженер, акт
- Забивные сваи ж/б 200*200мм * 3м с металлическими оголовками
- Забивка свай производится механизировано за 1 день

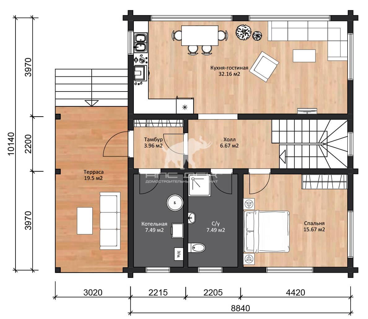
- Инженерно-геологические изыскания
- Конструкторский расчет по результатам изысканий по СП, Санпин
- Вынос осей участка и пятна застройки, кадастровый инженер, акт
- Выемка грунта, обратная песчаная засыпка
- Монолитная железо - бетонная плита на ребрах жесткости c обратной засыпкой
- Бетон марки М350 (B5), сертифицированный, выравнивание по СНиП, виброусадка
- Засыпка основания под ребра жесткости, песок 300-550 мм (H), гидроизоляция
- Армирование плиты в 2-слоя арматуры d12-20мм «рифлен», ростверк жесткости d12-20мм «рифлен», вязка по проекту КЖ на основании данных о грунтах и нагрузке дома
- Канализация/ водоснабжение – закладные трубы с утеплителем Energoflex
- Электроснабжение / слаботочка – закладные трубы с протяжкой
- Приемка инспектором технадзора скрытых работ, готового этапа по чек листу
- Зимнее бетонирование (сезонно): греющий кабель / создание купола под обогрев фундамента согласно СП



