Подпишись на телеграм-канал и будь в курсе последних новостей
+
Москва
Ваш регион
Санкт-Петербург

Сато 260

Общая площадь
260 м2
Гарантия
Пожизненная
Материал
Клееный брус
Онлайн камера в моб. приложении
Онлайн камера в моб. приложении
Персональный менеджер
Персональный менеджер
Независимый технадзор
Независимый технадзор
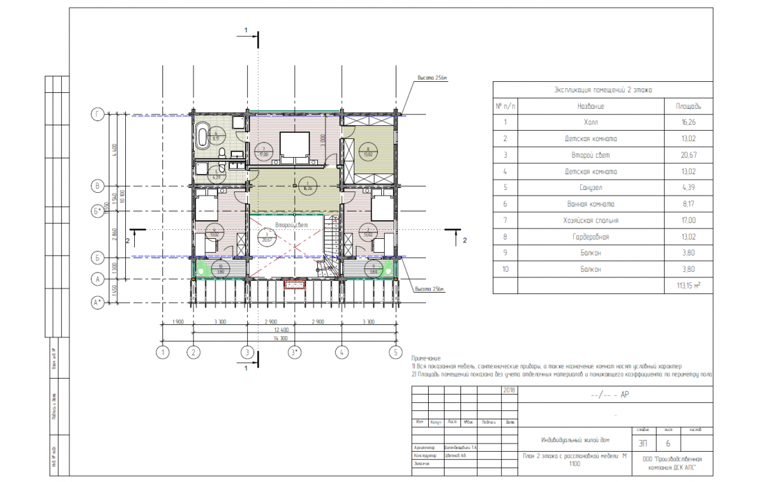
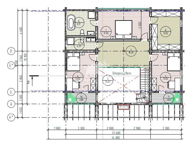
Реализованная
планировка

В любой из наших проектов можно внести изменения внутренней планировки и дополнений к внешнему виду.

В любой из наших проектов можно внести изменения внутренней планировки и дополнений к внешнему виду.

Гарантия
пожизненная
Ипотека
6%
  • техническое обслуживание - бесплатно
  • кредитование во всех ведущих банках
  • гибкий график финансирования
  • собственное производство
Вышлем смету
на Email
ЗАБИВНЫЕ Ж/Б СВАИ
 
 
  • Инженерно-геологические изыскания
  • Конструкторский расчет по результатам изысканий по СП, Санпин
  • Вынос осей участка и пятна застройки, кадастровый инженер, акт
  • Забивные сваи ж/б 200*200мм * 3м с металлическими оголовками
  • Забивка свай производится механизировано за 1 день
 
 
 
 
  • Инженерно-геологические изыскания
  • Конструкторский расчет по результатам изысканий по СП, Санпин
  • Вынос осей участка и пятна застройки, кадастровый инженер, акт
  • Выемка грунта, обратная песчаная засыпка
  • Монолитная железо - бетонная плита на ребрах жесткости c обратной засыпкой
  • Бетон марки М350 (B5), сертифицированный, выравнивание по СНиП, виброусадка
  • Засыпка основания под ребра жесткости, песок 300-550 мм (H), гидроизоляция
  • Армирование плиты в 2-слоя арматуры d12-20мм «рифлен», ростверк жесткости d12-20мм «рифлен», вязка по проекту КЖ на основании данных о грунтах и нагрузке дома
  • Канализация/ водоснабжение – закладные трубы с утеплителем Energoflex
  • Электроснабжение / слаботочка – закладные трубы с протяжкой
  • Приемка инспектором технадзора скрытых работ, готового этапа по чек листу
  • Зимнее бетонирование (сезонно): греющий кабель / создание купола под обогрев фундамента согласно СП
 
Клееный брус 180x200, производство АПС ДСК
Стена из клееного бруса в загородном доме от строй компании АПС
  • Комплект из клееного бруса 180*200мм (толщина), опц. 260*200 /245 толщина
    ЗИМНИЙ БРУС - СПЕЦИАЛЬНЫЕ ЦЕНЫ
  • Собственное производство клееного бруса полного цикла, сертифицированное
  • Зарезка чашек по проекту, пазы под оконные проемы, пакетирование, торцевое антисептирование
  • Клей KIILTO (Финляндия), экологичные EPI системы, отсутствие фармальдегидов
  • Протокол испытания по европейским стандартам CE EN 391 в Тампере
  • Сертифицирован по Национальной системе сертификации QR от Росстандарта
  • Материал: сосна/ ель - на выбор
  • Ветровой замок, уплотнение Shelter, крепеж из оцинкованной стали
  • Система усадочного крепежа: сквозное шпилевание со сдерживанием пружин SILA и самостягивающих шайб
  • Межэтажные балки перекрытия 80*180 мм усиленные клееные
  • Скрытая электрика в негорючей гофротрубе, разводка по проекту
  • Обсадная коробка по СНиП, П – образная, гидроизоляция
  • Внутренние перегородки, не несущие по каркасной технологии
  • Лестница однопролетная, строительная
 
Крыша: металлочерепица Grand Line
 
 
  • Стропильная система: доска сухая строганная 100/ 50*200мм (сосна, ель)
  • Усиление клееными балками | LVL пролетными конструкциями
  • Антисептирование огне-био защита в 2 слоя с индикатором
  • Система обрешетки / Контробрешетки – сухая с завода 8-14%
  • Пленки: паро-гидроизоляции Tyvek (премиум) с проклейкой
  • Утеплитель – каменная минеральная Paroc, внахлест
  • Металлочерепица: Grand Line - цвет на выбор
  • Пожизненная гарантия
Окна Rehau c 2-ух камерными стеклопакетами
 
 
  • Окна REHAU с 2-х камерным стеклопакетом (3 стекла)
  • Конфигурация открывания створок по ТЗ заказчика
  • Доборные комплектующие: отлив
  • Энергосберегающее I – стекло, низкоэмиссионное стекло
Опционально
ПРОЕКТИРОВАНИЕ
  • ЭОМ и ОВиК
 
ЭЛЕКТРОПРОВОДКА
  • Разводка скрытой электрики в гофротрубе (пожаробезопасно)
  • Монтаж трасс электрических (от 55 точек)
  • Устройство заземления
  • Устройство распределительного силового щитка
  • Монтаж защитной группы автоматики (до 36 механ.), вкл. автоматы, дифавтоматы, противопожарное УЗО, вводной выключатель
  • Расширение базового УЗО до 70 модулей 
 
КАНАЛИЗАЦИЯ
  • Разводка системы канализации (от 7 точек)
  • Фановые стояки 
 
КОТЕЛЬНАЯ ГРУППА
  • 2-ух контурный котел
  • Дымоход коаксиальный
  • Расширительный бак
  • Обвязка котла, система труб и подключение 
 
ОТОПЛЕНИЕ
  • Разводка системы отопления (2-ух трубная система, от 12 точек)
  • Радиаторы по проекту (стальн. профиль), установка, нижнее подключение 
 
ВОДОСНАБЖЕНИЕ
  • Разводка системы холодного/горячего водоснабжения (тройниковая, от 12 точек)
  • Установка водорозеток 
 
ОТДЕЛКА
  • Установка внутренних не несущих перегородок, раскладка труб и кабеля  
 
КОНТРОЛЬ
  • Проверка внутренней службой
  • Пусконаладочные работы всех систем
  • Гарантия
  • Фото отчеты 
 
Ход работ и оплата

Различные варианты оплаты:

  • Поэтапная оплата
  • Оплата за счет средств материнского капитала
  • Кредитование от всех банков РФ, ставка от 6%
  • Персональный порядок финансирования
 

Что включено:

  • Доставка и сборка
  • Пожизненная гарантия
  • Независимый тех. надзор, приемка работ по ЧЕК листам
  • Техническое обслуживание дома
  • Видеонаблюдение за стройкой в режиме онлайн (iVideon)
  • Внесение изменений в проект - БЕСПЛАТНО
 
Порядок и сроки работ
+ развернуть
  • Собственное
    производство
    Мы самостоятельно изготавливаем качественный клееный брус, используя оборудование от ведущих производителей.
    подробнее
  • Дом
    за 24 часа
    Наименьшее Рекордное время строительства дома из клееного бруса: 24 часа 45 минут.
    подробнее
  • Наши
    сертификаты
    Компания АПС ДСК сертифицирована по международным и российским стандартам качества.
    подробнее
наш рекорд
Официаль­ный рекорд России
Мы попали в книгу рекордов России установив официальный рекорд : «Наименьшее время строительства дома из клееного бруса площадью более 150м2»
Рекордное время строительства
24:45
Типовой проект
210 м ²
наши сертификаты
Проверка клееного бруса и производства
Строительная компания загородных домов и производитель клееного бруса «АПС ДСК» стала участником "Национальной системы сертификации" и первая в России, в своей отрасли, получила положительное заключение лаборатории по брусу и организации завода, пройдя оценку соответствия в рамках НСС в ФБУ "Нижегородский ЦСМ".
Результаты Финской лаборатории

Домостроение из клеёного бруса наиболее развито в Финляндии, поэтому мы проверили качество склейки нашего стенового комплекта по стандартам CE в лаборатории Kiilto — той же, где проходят испытания ведущие европейские и японские производители.

Испытания проводились по методу EN 391 B (тест на расслаивание) с воздействием вакуума, давления и последующей сушкой.
Результат: уровень расклея — 1,5% при допустимой норме в Финляндии до 4%.
По итогам испытаний мы превзошли показатели ряда норвежских компаний.

Мы уверены в качестве наших домов и поэтому предоставляем
пожизненную гарантию
наше производство
Цех клееного бруса 2 500 м²
Собственное деревообрабатывающее производство позволяет сделать доступнее жилье для наших клиентов. Мы самостоятельно изготавливаем качественный клееный брус, используя оборудование от ведущих производителей Германии, Италии, Финляндии и Швеции.
Разобрать смету
с менеджером
Заполните все поля и наш менеджер
свяжется с вами в ближайшее время.
* - обязательные поля
* - обязательные поля